閲覧履歴

お気に入り物件

お気に入り物件は会員登録すると使用できます。
未ログインの場合はログインして再度お試しください。

ログイン

保存した検索条件

保存した検索条件は会員登録すると使用できます。
未ログインの場合はログインして再度お試しください。

ログイン

賃貸物件を探す

売買物件を探す

店舗・事務所を探す

賃貸物件を見る

売買物件を見る

JR東海道本線 掛川駅 徒歩4分

夜間に愛車を眺めながら一息つく~to JUPITER~[ガレージ]

賃料145,000円 共益費/管理費3,000円

2LDK /97.00m² /2026年1月

RENT 新築

情報修正日:2026年03月15日 物件ID:00001100037464

閲覧数:1206お気に入り数:0質問(0件)

面積:23.18㎡、大型車の余裕を持って駐車可能です!

1/30
面積:23.18㎡、大型車の余裕を持って駐車可能です!

約14帖相当の広さ、床は土間コンクリートの金ゴテ仕上げ

2/30
約14帖相当の広さ、床は土間コンクリートの金ゴテ仕上げ

壁や天井には石膏ボードとグラスウールによる断熱・防火措置が施されています

3/30
壁や天井には石膏ボードとグラスウールによる断熱・防火措置が施されています

開けるとこんな感じ

4/30
開けるとこんな感じ

これはD棟のためガレージが黒いですが、C棟はホワイトっぽい色味です

5/30
これはD棟のためガレージが黒いですが、C棟はホワイトっぽい色味です

天井の銀河模様、暗くする光るんです...すごすぎる

6/30
天井の銀河模様、暗くする光るんです...すごすぎる

EV充電器付きと水栓付き!

7/30
EV充電器付きと水栓付き!

工事中であまり撮れなかったのですが、開口部はこんな感じです

8/30
工事中であまり撮れなかったのですが、開口部はこんな感じです

ガレージ+屋外2台駐車可能

9/30
ガレージ+屋外2台駐車可能

通路は線路を意識した造り

10/30
通路は線路を意識した造り

かわいい玄関とかわいい宅配BOXがにらめっこ

11/30
かわいい玄関とかわいい宅配BOXがにらめっこ

玄関収納もたくさん◎

12/30
玄関収納もたくさん◎

ここから愛車が覗きます

13/30
ここから愛車が覗きます

2階リビングも14帖ほどのゆとりのある広さ

14/30
2階リビングも14帖ほどのゆとりのある広さ

入った瞬間たき火が鵜揺れて驚きました

15/30
入った瞬間たき火が鵜揺れて驚きました

ポップインアラジンがついています!映画鑑賞し放題!

16/30
ポップインアラジンがついています!映画鑑賞し放題!

L2,100にシステムキッチン!

17/30
L2,100にシステムキッチン!

調理スペースもしっかりあります

18/30
調理スペースもしっかりあります

映画鑑賞しながらお料理できちゃいます

19/30
映画鑑賞しながらお料理できちゃいます

食器洗い乾燥機付き◎

20/30
食器洗い乾燥機付き◎

洋室が2部屋、どちらも約6帖

21/30
洋室が2部屋、どちらも約6帖

SOMIFYがついています、自動でブラインドなどが動かせる!

22/30
SOMIFYがついています、自動でブラインドなどが動かせる!

各部屋WIC付きです!

23/30
各部屋WIC付きです!

こちらの洋室からは天気がいいと富士山が見えるらしいです!

24/30
こちらの洋室からは天気がいいと富士山が見えるらしいです!

2.48㎡ の独立したWIC

25/30
2.48㎡ の独立したWIC

東海道新幹線、東海道本線、そして天竜浜名湖鉄道の3路線が交差する姿を、まるで実物大のジオラマのように眺めることができます

26/30
東海道新幹線、東海道本線、そして天竜浜名湖鉄道の3路線が交差する姿を、まるで実物大のジオラマのように眺めることができます

2階に水回りがあります

27/30
2階に水回りがあります

浴槽は一坪風呂以上!

28/30
浴槽は一坪風呂以上!

3階にトイレがあります

29/30
3階にトイレがあります

ぜひお問い合わせください!

30/30
ぜひお問い合わせください!

お気に入り
面積:23.18㎡、大型車の余裕を持って駐車可能です!
約14帖相当の広さ、床は土間コンクリートの金ゴテ仕上げ
壁や天井には石膏ボードとグラスウールによる断熱・防火措置が施されています
開けるとこんな感じ
これはD棟のためガレージが黒いですが、C棟はホワイトっぽい色味です
天井の銀河模様、暗くする光るんです...すごすぎる
EV充電器付きと水栓付き!
工事中であまり撮れなかったのですが、開口部はこんな感じです
ガレージ+屋外2台駐車可能
通路は線路を意識した造り
かわいい玄関とかわいい宅配BOXがにらめっこ
玄関収納もたくさん◎
ここから愛車が覗きます
2階リビングも14帖ほどのゆとりのある広さ
入った瞬間たき火が鵜揺れて驚きました
ポップインアラジンがついています!映画鑑賞し放題!
L2,100にシステムキッチン!
調理スペースもしっかりあります
映画鑑賞しながらお料理できちゃいます
食器洗い乾燥機付き◎
洋室が2部屋、どちらも約6帖
SOMIFYがついています、自動でブラインドなどが動かせる!
各部屋WIC付きです!
こちらの洋室からは天気がいいと富士山が見えるらしいです!
2.48㎡ の独立したWIC
東海道新幹線、東海道本線、そして天竜浜名湖鉄道の3路線が交差する姿を、まるで実物大のジオラマのように眺めることができます
2階に水回りがあります
浴槽は一坪風呂以上!
3階にトイレがあります
ぜひお問い合わせください!
なんと、ガレージの天井一面に銀河がデザインされており、暗闇の中で星空が光り輝く仕掛けになっているんです!!
高い天井高を活かしたこの演出は、単なる車庫の枠を超えて、まるで自分専用のプラネタリウムを手に入れたような感覚になります。
夜、一日の終わりに愛車の傍らで星空を眺める時間は、他では味わえない最高の贅沢になるはずです。
床のコンクリートの質感と、頭上に広がる宇宙のコントラストが、この場所を特別な秘密基地へと変えています。

階段を上がった2階のLDKは、木星をイメージしたという茶色と緑色の落ち着いた色彩が印象的で、どこか神秘的でありながら深い安らぎを与えてくれます。
壁付けのシステムキッチンは2100mmの幅があり、3口ガスコンロでお料理もしっかり楽しめます。
食器洗い乾燥機付きなので、片付けも楽々です!
リビングにはホームシアター設備のポップインアラジン2が標準装備されているので、引っ越したその日から大画面で映画鑑賞を楽しめます!

3階へ上がると、南北に配置された二つの洋室がプライベートな時間を受け止めてくれます。
どちらの部屋にも約1.5畳のウォークインクローゼットが備わっており、二人暮らしや荷物の多い方でも、お部屋の中に家具を出しすぎずスッキリと暮らせるのが魅力です。
南側の洋室からはバルコニーに出ることができ、柔らかな光が差し込みます。ちなみに北側のバルコニーから、天気が良ければ富士山が見えるらしいです!
ベランダにもSOMIFYが導入されており、最新のスマートホームのような利便性を感じました。

建物全体としても、壁には高性能グラスウールや強化石膏ボードが採用されており、1階ガレージからの冷気を遮断する断熱性や火災への安全性が高められています。
窓の配置もプライバシーを守りつつ光を取り込めるよう計算されており、外からの視線を気にせずリラックスして過ごせます。
ガレージハウスと聞くと居住性が犠牲になりがちですが、ここは趣味の空間と暮らしの快適さが高いレベルで融合しています。
自分だけのこだわりの空間を育てていきたい方に、ぜひ一度この空気感に触れていただきたいです!!

すぐ埋まってしまうので、お早めにお問い合わせください!

Cost

費用について

賃料
145,000円
共益費/管理費
3,000円
駐車場
賃料に含む:3台
自治会費
1,500円
備考
駐車場:建物ビルトインガレージ内1台、屋外駐車場2台
敷金
無料
礼金
無料
保証金
2ヶ月
保証会社初回費用
要加入 74,750円
住宅保険
25,000円程度
保険期間2年
仲介手数料
159,500円

365LIFEでは賃料の他に、実際に毎月かかる費用と契約時に必要な費用を算出して提示しております。

Guideline rent

概算月次費用

賃料
145,000円
共益費/管理費
3,000円
駐車場
賃料に含む:3台
自治会費
1,500円
概算月次費用
149,500円

概算月次費用は概算の数字になります。システムの都合上計算に含まれない費用もあります。また、お客様の個別の事情により費用が変わってくる場合があります。あくまでも目安としてご確認ください。

Approximate initial cost

概算初期費用

初月家賃等
149,500円
保証金
290,000円
保証会社初回費用
74,750円
住宅保険
25,000円程度
保険期間2年
仲介手数料
159,500円
概算初期費用
698,750円

概算初期費用は概算の数字になります。システムの都合上計算に含まれない費用もあります。また、お客様の個別の事情により費用が変わってくる場合があります。あくまでも目安としてご確認ください。

Base Information

基本情報

物件に関する基本的な情報

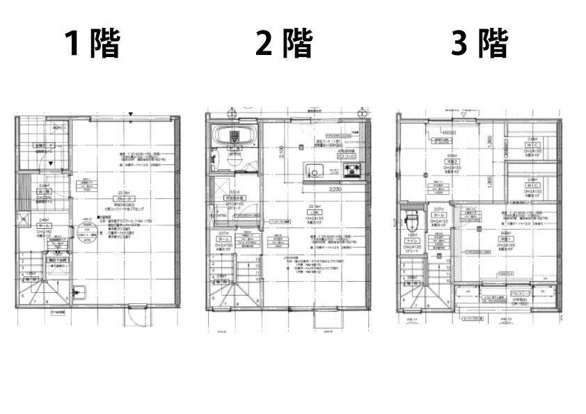
建物種別
テラスハウス
部屋番号
C棟
建物階数
地上3階
総戸数
4戸
築年
2026年1月
建物構造
木造
専有面積
97.00㎡
間取り
2LDK
所在階
地上1-3階 最上階
バルコニー
あり
契約期間
2年
入居/引渡時期
即日
現況
空室
取引態様
媒介

物件特徴

Equipment

付帯設備

専有設備

洗濯機置き場
室内
冷暖房
エアコン
その他設備
給湯 照明器具
バストイレ
バスルーム トイレ バス・トイレ別 シャワー付き洗面化粧台 洗面所独立 追焚機能 温水洗浄便座 浴室乾燥機 一坪風呂
キッチン
システムキッチン 対面キッチン 食器洗い乾燥機
コンロ種類
ガス
収納設備
ウォークインクローゼット
セキュリティ
TVドアホン
インターネット
インターネット使用料無料
その他専有設備
リモコン付電動シャッター(ガレージ、3階ベランダ)ホップインアラジン2 物置
※エアコン、照明全室

基本設備

共有設備

宅配BOX

備考

ビルトインガレージ面積 23㎡

Map & Address

地図と住所

住所

静岡県掛川市中央1-14-5

周辺施設

遠鉄ストア 掛川中央店(300m)
セブン-イレブン 掛川中央1丁目店(300m)
アスティ掛川(400m)
掛川スーパー 中央店(500m)
掛川市立中央小学校(600m)
ファミリーマート 掛川西町店(600m)
増山医院(700m)
静岡県立掛川西高等学校(800m)
掛川市立西中学校(1300m)
静岡県立掛川東高等学校(1800m)

交通機関

JR東海道本線 掛川駅 徒歩4分
天竜浜名湖鉄道 掛川駅 徒歩4分

Agency

取扱い不動産会社

株式会社スズヒロ

所在地
静岡県浜松市中央区曳馬2-1-25
営業時間
10:00~18:00
定休日
水曜日
免許番号
静岡県知事(12)第4821号
加盟団体
公益社団法人 全国宅地建物取引業協会連合会
SNS

Another room

同じ物件の別の部屋

宇宙を抱くガレージ ~to LUNA~[ガレージ]

無料
無料

静岡県掛川市中央1-14-5

賃料135,000円  
共益費/管理費3,000円

2LDK /95.00m² /2026年1月

ガレージの電動シャッターが静かに上がると、天井いっぱいに広がる鮮やかな銀河が目に飛び込んできました!
コンクリート打ちっぱなしの無骨な質感を再現した壁面に、深い青と星々が流れるクロスが組み合わさり、まるでシェルターの中に夜空を閉じ込めたような幻想的な空間です。
照明は自動センサー式になっているので、暗い時間帯に帰宅しても、車を降りた瞬間に頭上の銀河が優しく光り輝いて迎えてくれます 。
ここはただの車庫ではなく、愛車を主役にするためのギャラリーであり、日常を忘れさせてくれるあなただけのサンクチュアリです!

JR掛川駅から西へ歩いてわずか4分という抜群の立地に誕生するこの「Ginga Express」は、鉄道好きにはたまらない物語を持っています。
建物のすぐ南側を線路が走っており、3階の窓を開ければ東海道新幹線、東海道本線、そして天竜浜名湖鉄道の3路線が交差する姿を、まるで実物大のジオラマのように眺めることができます 。
夜、流れる電車の灯りを追いながら「銀河鉄道の夜」の一節にあるような本当の幸いについて考えを巡らせる、そんな贅沢な時間がここにはあります 。

A棟は「to Luna」という月の名が冠されており、内装には月をイメージしたシルバーやホワイト、そして深いブルーが随所に散りばめられています 。建物4棟すべてに星の名前と異なるベースカラーが設定されており、このA棟は特に静謐で洗練された雰囲気が漂っています 。間取りは使い勝手の良い2LDKで、一坪以上のゆったりとしたお風呂や食器洗い乾燥機、全室エアコン完備と、デザイン性だけでなく生活の質を支える設備が非常に充実しているのもうれしいポイントです 。

さらに、リビングにはホームシアター設備「ポップインアラジン2」が標準装備されています 。
壁一面に映画を映し出せば、自分だけのプライベートシアターに早変わり!

ガレージの外壁にも本物の打ちっぱなし外壁材が採用されており、細部までこだわり抜かれた高級感が漂っています 。
建物の南側には専用の物置も用意されているので、タイヤやアウトドア用品の収納にも困りません 。
利便性、デザイン、そして遊び心。そのすべてを妥協したくない方にこそ、この銀河の下での暮らしを選んでいただきたいです。
「LUNA」の色彩をぜひ現地で体感してみてください!!

続きを読む

見学したい(無料)

Q&A

この物件への質問(0件)

気になる物件の詳細で確認したいことがあれば、匿名にて質問ができる機能です。
物件の下調べの段階で確認しておきたいことがあればご活用ください。

※この物件への質問は会員登録すると使用できます。
未ログインの場合はログインして再度お試しください。

Recommended Realestate

オススメ不動産

アンティークで暮らそう

無料
無料

静岡県掛川市長谷245-8

賃料160,000円

1LDK /106.25m² /2004年9月

新しいお部屋をお探しですか?
それなら、私たちの魅力溢れる戸建て賃貸物件が完璧な選択肢になるでしょう。
広々とした約32帖のLDKは、まるで夢のよう。
ここでの生活は、ゆったりとした時間を過ごしながら、日々の疲れを癒やす最適な場所です。

レトロでアンティークな内装は、おしゃれでスタイリッシュな雰囲気を演出。
一歩部屋に足を踏み入れると、そこはまるでタイムトラベルしたかのような感覚に。
個性的でありながら、暖かみのあるデザインが魅力的な空間を作り出しています。

また、専用庭があるので、自分だけの小さなオアシスを楽しむこともできます。
植物を育てたり、お茶を飲みながらリラックスしたり、自由な時間をお庭で過ごすのはいかがでしょう。

さらに、エコフレンドリーな生活をサポートする太陽光発電と給水タンクが完備されています。
環境に優しく、長期的に見て経済的にもメリットがあります。
こうした設備は、現代の生活において非常に重要な要素です。

あなたのライフスタイルに合わせた、快適でスタイリッシュな生活がここにあります。
興味を持たれた方は、ぜひ一度足を運んでみてください。あなたの新しい生活がここから始まります!

続きを読む

見学したい(無料)

株式会社スズヒロ

公式LINEに友達登録後に送信される
アンケートにご返信お願いします。

LINEお問い合わせ

株式会社スズヒロ

TEL:053-411-6008

365LIFEを見たとお伝えください。

気になる物件の物件IDもしくは
タイトルをお伝えいただければ
スムーズにご案内ができます。

電話する

この物件に質問する

気になる物件の詳細で確認したいことがあれば、匿名にて質問ができる機能です。
物件の下調べの段階で確認しておきたいことがあればご活用ください。

※この物件への質問は会員登録すると使用できます。
未ログインの場合はログインして再度お試しください。

会員登録   ログイン

SOCIAL MEDIA