閲覧履歴

お気に入り物件

お気に入り物件は会員登録すると使用できます。
未ログインの場合はログインして再度お試しください。

ログイン

保存した検索条件

保存した検索条件は会員登録すると使用できます。
未ログインの場合はログインして再度お試しください。

ログイン

賃貸物件を探す

売買物件を探す

店舗・事務所を探す

賃貸物件を見る

売買物件を見る

JR東海道本線 鷲津駅 徒歩2分

趣味を楽しみ、街と暮らす。鷲津のデザインガレージハウス[新築]

賃料78,000円 共益費/管理費2,000円

1LDK /74.88m² /2026年01月

RENT 新築

情報修正日:2026年02月05日 物件ID:00001100037721

閲覧数:76お気に入り数:0質問(0件)

新築1LDKガレージハウスのご紹介です!!

1/27
新築1LDKガレージハウスのご紹介です!!

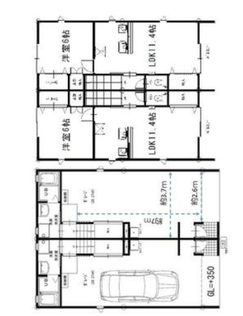
入口は横幅2,610㎜×高さ2,440㎜(現地寸法)

2/27
入口は横幅2,610㎜×高さ2,440㎜(現地寸法)

一番広い部分で、横幅3,770㎜。シンクが設置されている部分が2,870mmです

3/27
一番広い部分で、横幅3,770㎜。シンクが設置されている部分が2,870mmです

あなたの愛車は入りますか?

4/27
あなたの愛車は入りますか?

ここに工具を置いていつでも車点検!

5/27
ここに工具を置いていつでも車点検!

収納スペースがあります◎

6/27
収納スペースがあります◎

アウトドアには嬉しいシンク付き

7/27
アウトドアには嬉しいシンク付き

ガレージ前込みで2台駐車可能です!

8/27
ガレージ前込みで2台駐車可能です!

ちなみに鷲津駅まで徒歩2分という好立地!

9/27
ちなみに鷲津駅まで徒歩2分という好立地!

宅配BOX付とTVインターホンで安心ですね

10/27
宅配BOX付とTVインターホンで安心ですね

愛車の横を通って2階へ

11/27
愛車の横を通って2階へ

11.4帖のLDK!落ち着いた大人な雰囲気!

12/27
11.4帖のLDK!落ち着いた大人な雰囲気!

あなた色に染めて下さい

13/27
あなた色に染めて下さい

キッチンは対面式のシステムキッチン

14/27
キッチンは対面式のシステムキッチン

カウンターが広い!

15/27
カウンターが広い!

しっかりした立派なキッチンです

16/27
しっかりした立派なキッチンです

2口ガスコンロ付き!

17/27
2口ガスコンロ付き!

収納付き

18/27
収納付き

小さなディスプレイスペース発見

19/27
小さなディスプレイスペース発見

洋室は6帖

20/27
洋室は6帖

寝室にどうぞ!

21/27
寝室にどうぞ!

こちらも収納力抜群

22/27
こちらも収納力抜群

洗面スペース

23/27
洗面スペース

浴室乾燥機付き!

24/27
浴室乾燥機付き!

トイレは2階にあります

25/27
トイレは2階にあります

バルコニー

26/27
バルコニー

お問い合わせください!

27/27
お問い合わせください!

お気に入り
新築1LDKガレージハウスのご紹介です!!
入口は横幅2,610㎜×高さ2,440㎜(現地寸法)
一番広い部分で、横幅3,770㎜。シンクが設置されている部分が2,870mmです
あなたの愛車は入りますか?
ここに工具を置いていつでも車点検!
収納スペースがあります◎
アウトドアには嬉しいシンク付き
ガレージ前込みで2台駐車可能です!
ちなみに鷲津駅まで徒歩2分という好立地!
宅配BOX付とTVインターホンで安心ですね
愛車の横を通って2階へ
11.4帖のLDK!落ち着いた大人な雰囲気!
あなた色に染めて下さい
キッチンは対面式のシステムキッチン
カウンターが広い!
しっかりした立派なキッチンです
2口ガスコンロ付き!
収納付き
小さなディスプレイスペース発見
洋室は6帖
寝室にどうぞ!
こちらも収納力抜群
洗面スペース
浴室乾燥機付き!
トイレは2階にあります
バルコニー
お問い合わせください!
湖西市鷲津のガレージハウスのご紹介です!!

まず注目して欲しいのが、このガレージの圧倒的なスケール感。
入り口こそ横幅2,610mm、高さ2,440mmと十分なサイズですが、内部に入ると一番広い部分で横幅3,770mmという驚きの広さが確保されています!
これだけの幅があれば、大型車を停めても左右のドアを気兼ねなく開けられますし、愛車の横にソファを置いて自分だけの特等席を作ることも夢ではありません。
ガレージ内に設置されたシンク車好きはもちろん、アウトドア好きにも重宝すること間違いなしですね。
この空間自体のデザイン性が非常に高く、ただの車庫として使うのはもったいないと感じるほどオシャレな仕上がりになっています!

生活の基盤となる水回りが1階に集結しているのは、まさにガレージハウスならではの合理的な設計です。トイレは2階ですが!
汚れをすぐに落とせる利便性はもちろん、その分2階のLDKと洋室はプライベート感たっぷりの、最高に落ち着ける「チルな空間」に仕上がっています!
対面式のシステムキッチンが設置されたLDKは新築ならではの綺麗さと、爽やかさを放っています。

鷲津駅から徒歩2分という超好立地ゆえに、静寂を求める方には少し賑やかに感じるタイミングもあるかもしれませんが、それ以上に、駅近の利便性とピカピカの新築ガレージ、そして2階で思いきりくつろげるプライベート空間を同時に手に入れられる希少性は、何物にも代えがたい魅力です!
車やバイクを大切にしたい方はもちろん、それらを眺める豊かな時間と、駅近でスマートに暮らす心地よさの両方を手に入れたい方に、ぜひこの空間を体感していただきたいです。

実際にこのワイドなガレージにお手持ちの車が入るか、現地で一緒に確認してみませんか?
ガレージハウスは人気です。
ぜひお早めにお問い合わせください!!

Cost

費用について

賃料
78,000円
共益費/管理費
2,000円
駐車場
賃料に含む:2台
敷金
156,000円
礼金
78,000円
保証会社初回費用
要加入 40,000円
更新料 10,000円/年
住宅保険
15,000円程度
保険期間2年
仲介手数料
85,800円

365LIFEでは賃料の他に、実際に毎月かかる費用と契約時に必要な費用を算出して提示しております。

Guideline rent

概算月次費用

賃料
78,000円
共益費/管理費
2,000円
駐車場
賃料に含む:2台
概算月次費用
80,000円

概算月次費用は概算の数字になります。システムの都合上計算に含まれない費用もあります。また、お客様の個別の事情により費用が変わってくる場合があります。あくまでも目安としてご確認ください。

Approximate initial cost

概算初期費用

初月家賃等
80,000円
敷金
156,000円
礼金
78,000円
保証会社初回費用
40,000円
住宅保険
15,000円程度
保険期間2年
仲介手数料
85,800円
概算初期費用
454,800円

概算初期費用は概算の数字になります。システムの都合上計算に含まれない費用もあります。また、お客様の個別の事情により費用が変わってくる場合があります。あくまでも目安としてご確認ください。

Base Information

基本情報

物件に関する基本的な情報

建物種別
一戸建て
部屋番号
A号室
建物階数
地上2階
総戸数
2戸
築年
2026年01月
建物構造
木造
専有面積
74.88㎡
間取り
1LDK
所在階
1-2階 角部屋 最上階
主要採光
南西
バルコニー
なし
契約期間
2年
入居/引渡時期
即日
現況
空室
取引態様
媒介
ペット可否
不可

物件特徴

Equipment

付帯設備

専有設備

洗濯機置き場
室内
冷暖房
エアコン
その他設備
給湯
バストイレ
バスルーム トイレ バス・トイレ別 シャワー付き洗面化粧台 洗面所独立 追焚機能 温水洗浄便座
キッチン
システムキッチン 対面キッチン
コンロ種類
ガス
収納設備
ガレージ
セキュリティ
TVドアホン
その他専有設備
ガレージ・電動シャッター

基本設備

水道
公営
ガス
プロパン

共有設備

宅配BOX

備考

Map & Address

地図と住所

住所

静岡県湖西市鷲津5040

周辺施設

ファミリーマート 鷲津駅前店(400m)
長尾クリニック(400m)
市立湖西病院(500m)
湖西市立鷲津中学校(600m)
遠鉄ストア 湖西店(600m)
ファミリーマート 湖西鷲津東店(600m)
静岡県立湖西高等学校(800m)
湖西市立鷲津小学校(900m)
ザ・ビッグ 湖西店(1200m)

交通機関

JR東海道本線 鷲津駅 徒歩2分
バス停 鷲津公園 停歩2分

Agency

取扱い不動産会社

株式会社スズヒロ

所在地
静岡県浜松市中央区曳馬2-1-25
営業時間
10:00~18:00
定休日
水曜日
免許番号
静岡県知事(12)第4821号
加盟団体
公益社団法人 全国宅地建物取引業協会連合会
SNS

Q&A

この物件への質問(0件)

気になる物件の詳細で確認したいことがあれば、匿名にて質問ができる機能です。
物件の下調べの段階で確認しておきたいことがあればご活用ください。

※この物件への質問は会員登録すると使用できます。
未ログインの場合はログインして再度お試しください。

株式会社スズヒロ

公式LINEに友達登録後に送信される
アンケートにご返信お願いします。

LINEお問い合わせ

株式会社スズヒロ

TEL:053-411-6008

365LIFEを見たとお伝えください。

気になる物件の物件IDもしくは
タイトルをお伝えいただければ
スムーズにご案内ができます。

電話する

この物件に質問する

気になる物件の詳細で確認したいことがあれば、匿名にて質問ができる機能です。
物件の下調べの段階で確認しておきたいことがあればご活用ください。

※この物件への質問は会員登録すると使用できます。
未ログインの場合はログインして再度お試しください。

会員登録   ログイン

SOCIAL MEDIA