閲覧履歴

お気に入り物件

お気に入り物件は会員登録すると使用できます。
未ログインの場合はログインして再度お試しください。

ログイン

保存した検索条件

保存した検索条件は会員登録すると使用できます。
未ログインの場合はログインして再度お試しください。

ログイン

賃貸物件を探す

売買物件を探す

店舗・事務所を探す

賃貸物件を見る

売買物件を見る

JR東海道本線 浜松駅 徒歩10分

1階ならではの価格帯が魅力[新築]

賃料60,000円 共益費/管理費5,000円

1K /28.11m² /2026年3月

RENT 新築

情報修正日:2026年02月23日 物件ID:00001100037843

閲覧数:65お気に入り数:0質問(0件)

1/19

2/19

3/19

4/19

5/19

6/19

7/19

8/19

9/19

10/19

11/19

12/19

13/19

14/19

15/19

16/19

17/19

18/19

19/19

お気に入り
建築中から申込多数の大人気新築物件!
お早めにお問い合わせください!!

Cost

費用について

賃料
60,000円
共益費/管理費
5,000円
駐車場
要確認
保証会社費用
賃料総額の1.5%
自治会費
600円
敷金
無料
礼金
60,000円
保証会社初回費用
要加入 32,800円
更新料 10000円/2年
住宅保険
16,000円程度
更新料
11,000円
仲介手数料
66,000円
退去負担金
65,000円
自治会入会金
2,000円

365LIFEでは賃料の他に、実際に毎月かかる費用と契約時に必要な費用を算出して提示しております。

Guideline rent

概算月次費用

賃料
60,000円
共益費/管理費
5,000円
駐車場
要確認
自治会費
600円
概算月次費用
65,600円

概算月次費用は概算の数字になります。システムの都合上計算に含まれない費用もあります。また、お客様の個別の事情により費用が変わってくる場合があります。あくまでも目安としてご確認ください。

Approximate initial cost

概算初期費用

初月家賃等
65,600円
礼金
60,000円
保証会社初回費用
32,800円
住宅保険
16,000円程度
仲介手数料
66,000円
退去負担金
65,000円
自治会入会金
2,000円
概算初期費用
307,400円

概算初期費用は概算の数字になります。システムの都合上計算に含まれない費用もあります。また、お客様の個別の事情により費用が変わってくる場合があります。あくまでも目安としてご確認ください。

Base Information

基本情報

物件に関する基本的な情報

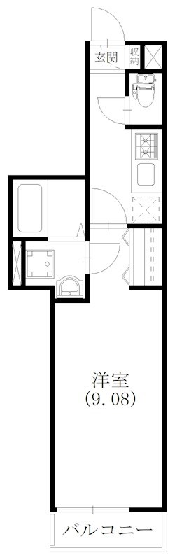
建物種別
マンション
部屋番号
103号室
建物階数
地上5階
総戸数
30戸
築年
2026年3月
建物構造
RC(鉄筋コンクリート)
専有面積
28.11㎡
間取り
1K
所在階
地上1階
主要採光
バルコニー
あり
契約期間
2年
入居/引渡時期
3月上旬
現況
建築中
取引態様
媒介

物件特徴

Equipment

付帯設備

専有設備

洗濯機置き場
室内
冷暖房
エアコン
その他設備
給湯 BS・CS
バストイレ
バスルーム トイレ バス・トイレ別 シャワー付き洗面化粧台 洗面所独立 温水洗浄便座 浴室乾燥機
キッチン
システムキッチン
コンロ種類
ガス
セキュリティ
TVドアホン オートロック 防犯カメラ
インターネット
インターネット使用料無料
その他専有設備
複層ガラス

基本設備

水道
公営
ガス
都市ガス

共有設備

エレベーター 宅配BOX 敷地内ゴミ置き場 駐輪場

備考

Map & Address

地図と住所

住所

静岡県浜松市中央区海老塚2-8-3

周辺施設

中島内科クリニック(200m)
セブンイレブン 浜松砂山町店(300m)
ながさかハートクリニック(400m)
ビオ・あつみ エピスリー浜松(600m)
ファミリーマート 浜松寺島店(600m)
西友上浅田店(700m)
メイワン(800m)

交通機関

JR東海道本線 浜松駅 徒歩10分
遠州鉄道 新浜松駅 徒歩7分

Agency

取扱い不動産会社

株式会社スズヒロ

所在地
静岡県浜松市中央区曳馬2-1-25
営業時間
10:00~18:00
定休日
水曜日
免許番号
静岡県知事(12)第4821号
加盟団体
公益社団法人 全国宅地建物取引業協会連合会
SNS

Another room

同じ物件の別の部屋

駅チカ・角部屋・いいことづくし[新築]

無料
6.3万円

静岡県浜松市中央区海老塚2-8-3

賃料63,000円  
共益費/管理費5,000円

1K /28.59m² /2026年3月

建築中から申込多数の大人気新築物件!
お早めにお問い合わせください!!

続きを読む

見学したい(無料)

大人気1K[新築]

無料
6.3万円

静岡県浜松市中央区海老塚2-8-3

賃料63,000円  
共益費/管理費5,000円

1K /28.11m² /2026年3月

建築中から申込多数の大人気新築物件!
お早めにお問い合わせください!!

続きを読む

見学したい(無料)

Q&A

この物件への質問(0件)

気になる物件の詳細で確認したいことがあれば、匿名にて質問ができる機能です。
物件の下調べの段階で確認しておきたいことがあればご活用ください。

※この物件への質問は会員登録すると使用できます。
未ログインの場合はログインして再度お試しください。

Recommended Realestate

オススメ不動産

公園の辺に佇むレトロ

無料
無料

静岡県浜松市中央区船越町52-19

賃料51,000円  
共益費/管理費3,000円

1K /37.95m² /1985年3月

花火で有名な船越公園のすぐ横にこのお部屋はあります。

外観を見ると築年数相応の佇まいをしていますが、お部屋はおしゃれに改装されていていい感じです。

横長の12帖のリビングは採光も充分取れて、内装デザインとマッチした可愛らしい照明もついています。

このお部屋はキッチンも新しくなっていて黄色いタイルがとても印象的な明るいキッチンです。

場所としても柳通りと蒲バイパスの交差点に位置しているのでアクセスもいいし、ないよりも船越公園が徒歩1分もかかりません。

朝、出勤前に公園一周ジョギングをしてから出社することも苦なくできます。そんな立地をフル活用して欲しいお部屋です。

続きを読む

見学したい(無料)

白を染めてゆく

無料
無料

静岡県浜松市中央区和合北3-5-14

賃料45,000円  
共益費/管理費3,000円

1DK /33.48m² /2005年8月

11畳というゆとりのある洋室に入った瞬間、白を基調とした内装と明るい床の色が目に飛び込んできて、実際の間取り以上に開放感を感じました。

キッチンは5畳のダイニングとして独立しており、生活空間を分けたい方に理想的な配置です。 鉄筋コンクリート造のマンションで、隣の音が響きにくい構造なのも安心感があります。 ネット使用料不要や宅配ボックス、電子ロックなど、現代の生活に欠かせない設備も充実しています。

駅まで徒歩38分以上かかる距離は正直大変だと感じましたが、敷地内に駐車場が1台分確保されています。
車移動が中心の方なら、駅前の喧騒から離れた落ち着いた環境で快適に過ごせるはずです。
バス・トイレ別や独立洗面台など、水回りの使い勝手も良くまとまっています。

これから1人暮らしを始める方は是非!

続きを読む

見学したい(無料)

呑んで帰ります。

無料
無料

静岡県浜松市中央区山下町108

賃料44,000円  
共益費/管理費5,000円

1DK /35.74m² /2001.03

洋室12帖でバストイレ別でこのエリアでと考えたら、お値打ち価格です!
部屋も綺麗で、住むには問題ありません。

ですが、せっかく室内の掃き出し窓から直接外に出れる構造なのに窓開けたらすぐに柵なんです。
窓の外は駐車場スペースになっているので、そこをもっと活用できれば面白いのに...と思ってしまいました。
街中物件で1階だし、室内の廊下を養生して愛車のロードバイクいれて見るという使い方もいいかもしれませんね!

駅チカと家賃を重視される方は是非。

続きを読む

見学したい(無料)

木の香り、光の恵み。

12.8万円
6.4万円

静岡県浜松市中央区龍禅寺町268-1

賃料64,000円  
共益費/管理費3,000円

1LDK /33.64m² /2013年02月

人間の五感のなかで臭覚というものは最もダイレクトに感情や本能を支配する脳に伝わるようですが、この部屋に入った瞬間、私の脳が「ここに住みたい!」と言い始めました。取材から5日たった今でもあの木の香りを思い出すぐらい記憶に焼きついています。本当に癒されるいい香りなんです。

室内はコンクリート打ちっぱなしの無機質さと、無垢の床材と壁一面に貼り付けられた荒削りの木材のコントラストで出来ています。この壁の木材が香りを放ち続けています。
香りだけではありません。南側の中庭を囲むように建物が建っているため、外側にベランダが見えない構造になっています。背の高い建物が建ち並ぶ立地でありながら光の恵みを十分に受けられるのですね。

14帖のワンルームですが、可動収納を移動することが出来るのでベットの配置に合わせて仕切りを変えられます。

建物名称にある「COZY」の名のごとく、木の香りと光に包まれて、自分なりの居ごごち良い空間をお楽しみください。

続きを読む

見学したい(無料)

株式会社スズヒロ

公式LINEに友達登録後に送信される
アンケートにご返信お願いします。

LINEお問い合わせ

株式会社スズヒロ

TEL:053-411-6008

365LIFEを見たとお伝えください。

気になる物件の物件IDもしくは
タイトルをお伝えいただければ
スムーズにご案内ができます。

電話する

この物件に質問する

気になる物件の詳細で確認したいことがあれば、匿名にて質問ができる機能です。
物件の下調べの段階で確認しておきたいことがあればご活用ください。

※この物件への質問は会員登録すると使用できます。
未ログインの場合はログインして再度お試しください。

会員登録   ログイン

SOCIAL MEDIA