閲覧履歴

お気に入り物件

お気に入り物件は会員登録すると使用できます。
未ログインの場合はログインして再度お試しください。

ログイン

保存した検索条件

保存した検索条件は会員登録すると使用できます。
未ログインの場合はログインして再度お試しください。

ログイン

賃貸物件を探す

売買物件を探す

店舗・事務所を探す

賃貸物件を見る

売買物件を見る

感性を刺激する、美しきモデルハウス

「照明と木の魔術師」

価格4,990万円

/144.51m² /2025年4月

SALE 新築

情報修正日:2025年11月05日 物件ID:00001100037485

閲覧数:152お気に入り数:0質問(0件)

1/26

2/26

3/26

4/26

5/26

6/26

7/26

8/26

9/26

10/26

11/26

12/26

13/26

14/26

15/26

16/26

17/26

18/26

19/26

20/26

21/26

22/26

23/26

24/26

25/26

26/26

お気に入り
初めてこのモデルハウスに足を踏み入れたとき、私は言葉を失いました。
目の前に広がっていたのは、“住まい”という概念を超えた、美術館のような空間。

自分の価値観が、一瞬でアップデートされたような感覚でした。
これまでの家探しで見てきた住宅が、どこかチープに思えてしまうほど――。


【吹き抜け5.4mの大空間に、心が奪われる。】
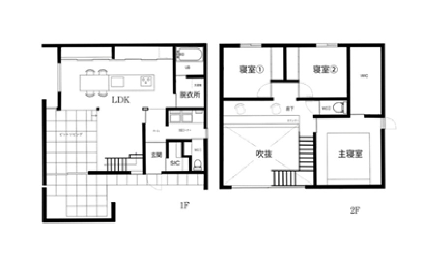
まず、LDKの吹き抜け空間。床から天井まで5.4mという圧倒的な高さに加え、天井には大きなファンが設置され、空気がやわらかく循環しています。
開放感をさらに際立たせていたのは、テラスへと続く高さ2.7mの掃き出し窓。外との境界線が曖昧になるようなその窓は、光をたっぷりと室内に取り込み、この大空間にふさわしいスケール感を生み出していました。
1階リビングには床暖房が備わっていて、広々とした空間でもしっかりと温もりを感じられます。冬場でも裸足で歩きたくなる、そんな快適さです。


【天然素材の美しさと機能性を、五感で味わう。】
全体に使用されている無垢材や天然石の質感は、本当に見て・触れてこそ分かるもの。照明の当たり方ひとつで、木の表情が変わり、時間の流れすら美しく感じさせてくれます。
2階の書籍カウンターには、なんと全長4.1mの皮付き一枚板。リビングのダイニングテーブルも脚のない一枚板で、家具というより“作品”に近い存在感です。
それもそのはず。この家を手がけたのは、空間デザインと素材使いに定評のあるOAK DESIGN HOUSE(オークハウスデザイン)。
彼らの「魅せる空間づくり」のセンスは、間取りや素材だけでなく、生活動線や視線の抜け方、家具の選定に至るまで一貫しています。


【ホテルライクな主寝室と、実用性も兼ね備えた空間設計。】
2階の主寝室には、まるで高級ホテルのような造作ベッドが設置済み。そこからはドレスルームへと直接アクセスでき、ホテルライクな動線が確保されています。収納に必要なハンガーパイプなどは、住む方の希望に合わせて後から自由にカスタマイズ可能です。
ほかの2部屋には漆喰仕上げの壁と天井。手触りも美しく、調湿・防臭効果にも優れていて、暮らすほどに心地よさを実感できる空間になっています。


【美しさだけでなく、機能性にもこだわったキッチン・水まわり。】
キッチン背面には、鏡張りのような引き戸が印象的で、空間をより広く、より開放的に感じさせてくれます。その奥にはパントリーとカップボードの収納スペースが広がっており、生活感を出さずに機能的な収納が可能。美しさと実用性の両立が見事です。
また、洗面スペースは玄関側に配置されており、2シンク仕様。朝の混雑する時間帯でも、家族で譲り合うことなく快適に使えます。帰宅後すぐに手洗いできる動線も、子育て世代にはありがたいポイントです。


【見えないところにも、こだわりが。】
シューズクロークは広く、ハンガーパイプ付き。出かける前にコートをスマートに取り出せる動線が整っています。
さらに、建物は高気密・高断熱仕様で、5.4mの吹き抜けがあっても、室内の温度環境は快適に保たれます。


【あえて挙げる“弱点”も、住まいを理解する一歩。】
すべてが完璧に思えるこの家にも、いくつかの注意点があります。
主寝室の窓は開閉できないタイプ(羽目殺し)なので、自然換気が難しい部分があります。
LDKのような吹き抜け大空間では、冷暖房効率が下がる可能性も。ただし、高性能な断熱・気密仕様がしっかりとカバーしてくれます。
洗面脱衣所に設けられたおしゃれな棚は、デザイン性が高い反面、実用性には少し工夫が必要かもしれません。


【この家は、「買う」ではなく、「迎え入れる」住まい。】
このモデルハウスは現在販売中ですが、ご購入後3ヶ月間はモデルハウスとしての貸与が条件です。ですが、それだけ多くの人がこの空間に感動し、見に来たくなる理由があるということ。むしろその3ヶ月を、家が輝く時間として一緒に楽しんでほしいと思います。


【あなたに、この空間を体感してほしい。】
この家は、“ただ暮らす”ための家ではありません。
毎日を、美しく、誇らしく生きるための舞台装置のような家。

もしあなたが、住まいに「美」と「心地よさ」の両方を求めるなら。
もし、“作品のような暮らし”を手に入れたいと願うなら――
一度、この空間に立ってみてください。

私がそうだったように、きっと、あなたもこの家に心を奪われるはずです。

Cost

費用について

価格
4,990万円
駐車場
価格に含む:3台

Base Information

基本情報

物件に関する基本的な情報

建物種別
新築一戸建て
部屋番号
1号室
建物階数
地上2階
総戸数
1戸
築年
2025年4月 未入居
建物構造
木造
専有面積
144.51㎡
土地面積
189.7㎡
地目
宅地
地勢
平坦
都市計画
市街化調整区域
用途地域
未指定
建蔽率
60%
容積率
200%
土地権利
所有権
国土法
指定なし
私道負担
指定なし
セットバック
指定なし
接道状況
二方(角地)
接道1
南 幅員5.4mの公道 12.5m接道
接道2
西 幅員4mの公道 14.6m接道
主要採光
バルコニー
なし
入居/引渡時期
相談
現況
空家
取引態様
媒介
ペット可否

物件特徴

Equipment

付帯設備

専有設備

洗濯機置き場
室内
冷暖房
エアコン
その他設備
家具家電付き
バストイレ
バスルーム トイレ バス・トイレ別 洗面所独立 追焚機能 温水洗浄便座 浴室乾燥機 一坪風呂
キッチン
システムキッチン 対面キッチン 食器洗い乾燥機
コンロ種類
IH
収納設備
ウォークインクローゼット シューズインクローゼット
セキュリティ
TVドアホン

基本設備

水道
公営
ガス
プロパン

共有設備

備考

Map & Address

地図と住所

住所

静岡県浜松市中央区安間町530-1

周辺施設

和田東小学校(200m)
浜松市立天竜中学校(600m)
ローソン 浜松安新町店(1000m)
セブン-イレブン 浜松安新町店(1100m)
スーパーマーケットバロー中野町店(1500m)
クリエイトSD 浜松和田店(1700m)
マックスバリュ浜松和田店(1800m)
クスリのアオキ 浜松北島店(1800m)
イオンモール浜松市野(4200m)

交通機関

薬新町(バス) 徒歩12分

Agency

取扱い不動産会社

株式会社スズヒロ

所在地
静岡県浜松市中央区曳馬2-1-25
営業時間
10:00~18:00
定休日
水曜日
免許番号
静岡県知事(12)第4821号
加盟団体
公益社団法人 全国宅地建物取引業協会連合会
SNS

Q&A

この物件への質問(0件)

気になる物件の詳細で確認したいことがあれば、匿名にて質問ができる機能です。
物件の下調べの段階で確認しておきたいことがあればご活用ください。

※この物件への質問は会員登録すると使用できます。
未ログインの場合はログインして再度お試しください。

株式会社スズヒロ

公式LINEに友達登録後に送信される
アンケートにご返信お願いします。

LINEお問い合わせ

株式会社スズヒロ

TEL:053-411-6008

365LIFEを見たとお伝えください。

気になる物件の物件IDもしくは
タイトルをお伝えいただければ
スムーズにご案内ができます。

電話する

この物件に質問する

気になる物件の詳細で確認したいことがあれば、匿名にて質問ができる機能です。
物件の下調べの段階で確認しておきたいことがあればご活用ください。

※この物件への質問は会員登録すると使用できます。
未ログインの場合はログインして再度お試しください。

会員登録   ログイン

SOCIAL MEDIA