桜台の街並みって、そんな雰囲気があります。
整った区画に、緑があって、騒がしすぎず静かすぎず。
車通りも多すぎないし、どこを歩いても“ちゃんと暮らしてる人がいる街”っていう空気が漂ってるんです。
そんな桜台2丁目にできたちょっとこだわりの戸建て、ご紹介します。
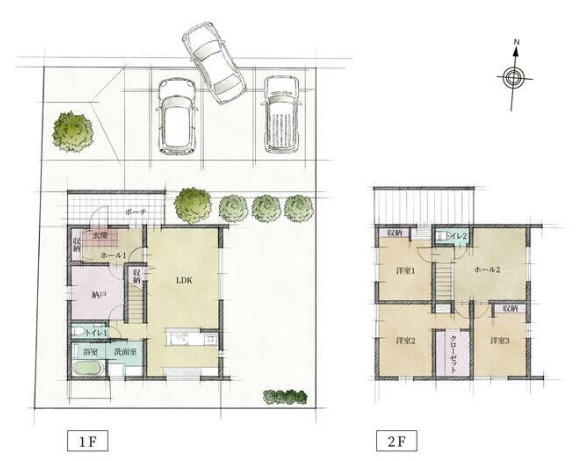
■応接室として使える1階洋室が、実は便利!
玄関入ってすぐ、1部屋あります。
昔ながらの“応接室”みたいな使い方ができるから、来客時に生活空間を見せずに済むのが嬉しいポイント。
テレワーク用の書斎や、親御さんが泊まりに来たときの部屋としても◎。
意外と、「あってよかった!」と思える空間です。
■約16帖のLDKは対面キッチン付き
リビングは16帖で対面キッチンタイプ。
広すぎず狭すぎず、家族がちゃんと集まれるサイズ感。
キッチンからお庭が見えるから、料理中もお子さんの様子が見えて安心です。
リビングの掃き出し窓からそのまま庭に出られるので、ウッドデッキを作っておうちカフェなんかもいいかも。
■ 外観も中も、おしゃれにまとまってる
シンプルだけど高級感があり、落ち着いた外観。
デザイナーズらしいアクセントもあって、“桜台の街並みにちゃんと馴染む”デザインになっています。
玄関ポーチには屋根がついていて、雨の日の出入りも安心。
収納もたっぷりで、主寝室には広めのウォークインクローゼットがあり、衣替えもラクラクです。
■2階ホールは“ちょっと嬉しい”スペース
2階に上がると、廊下というより“ホール”という感じのちょっとした広いスペースがあります。
ここにお子さんの勉強机を置いたり、簡易ワークスペースにしたり、使い方は自由。
「このちょっとしたスペースが、暮らしの幅を広げてくれるんだよな」って、住んでみてわかる良さがあります。
■駐車3台OK&前面道路は6mでゆったり
車は最大3台分停められるスペースあり。
来客用や将来のお子さん用としても安心です。
前面道路は6mと広めなので、車の出し入れもラクラク。
運転に自信がない方でもストレスを感じにくいはず。
■ 太陽光パネル7.47kW搭載で、エコな暮らしも
屋根には7.47kWの太陽光発電パネルを搭載。
自宅で使ってもいいし、余った分は売電もOK。
環境にもお財布にもやさしい、ちょっと先を見据えた暮らしができます。
■周辺環境も、静かで便利
徒歩圏内に、スーパー・ドラッグストア・コンビニがそろっていて、毎日の買い物にも困りません。
遠鉄ストア桜台店:徒歩約7分
桜台ショッピングセンター:徒歩約8分
セブンイレブン:徒歩約9分
ココカラファイン:徒歩約8分
Seria:徒歩約8分
浜松市立和地小学校:徒歩約15分
子育てにも、落ち着いた暮らしにも、ちょうどいい環境です。
■まとめ
見た目も、間取りも、街の雰囲気も、
「なんか、いいな」と思える家。
シンプルだけど高級感があり、そのくせ気取っていない感じが好き。住んでからの満足度が高い家って、こういう家なんだと思います。
桜台のキレイな街並みで、新しい暮らしを始めませんか?
お気軽にお問い合わせ・ご見学ください。
