閲覧履歴

お気に入り物件

お気に入り物件は会員登録すると使用できます。
未ログインの場合はログインして再度お試しください。

ログイン

保存した検索条件

保存した検索条件は会員登録すると使用できます。
未ログインの場合はログインして再度お試しください。

ログイン

賃貸物件を探す

売買物件を探す

店舗・事務所を探す

賃貸物件を見る

売買物件を見る

新築/築浅

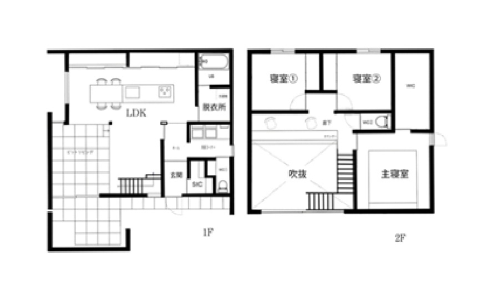
「照明と木の魔術師」

静岡県浜松市中央区安間町530-1

価格4,990万円

/144.51m² /2025年4月

初めてこのモデルハウスに足を踏み入れたとき、私は言葉を失いました。
目の前に広がっていたのは、“住まい”という概念を超えた、美術館のような空間。

自分の価値観が、一瞬でアップデートされたような感覚でした。
これまでの家探しで見てきた住宅が、どこかチープに思えてしまうほど――。


【吹き抜け5.4mの大空間に、心が奪われる。】
まず、LDKの吹き抜け空間。床から天井まで5.4mという圧倒的な高さに加え、天井には大きなファンが設置され、空気がやわらかく循環しています。
開放感をさらに際立たせていたのは、テラスへと続く高さ2.7mの掃き出し窓。外との境界線が曖昧になるようなその窓は、光をたっぷりと室内に取り込み、この大空間にふさわしいスケール感を生み出していました。
1階リビングには床暖房が備わっていて、広々とした空間でもしっかりと温もりを感じられます。冬場でも裸足で歩きたくなる、そんな快適さです。


【天然素材の美しさと機能性を、五感で味わう。】
全体に使用されている無垢材や天然石の質感は、本当に見て・触れてこそ分かるもの。照明の当たり方ひとつで、木の表情が変わり、時間の流れすら美しく感じさせてくれます。
2階の書籍カウンターには、なんと全長4.1mの皮付き一枚板。リビングのダイニングテーブルも脚のない一枚板で、家具というより“作品”に近い存在感です。
それもそのはず。この家を手がけたのは、空間デザインと素材使いに定評のあるOAK DESIGN HOUSE(オークハウスデザイン)。
彼らの「魅せる空間づくり」のセンスは、間取りや素材だけでなく、生活動線や視線の抜け方、家具の選定に至るまで一貫しています。


【ホテルライクな主寝室と、実用性も兼ね備えた空間設計。】
2階の主寝室には、まるで高級ホテルのような造作ベッドが設置済み。そこからはドレスルームへと直接アクセスでき、ホテルライクな動線が確保されています。収納に必要なハンガーパイプなどは、住む方の希望に合わせて後から自由にカスタマイズ可能です。
ほかの2部屋には漆喰仕上げの壁と天井。手触りも美しく、調湿・防臭効果にも優れていて、暮らすほどに心地よさを実感できる空間になっています。


【美しさだけでなく、機能性にもこだわったキッチン・水まわり。】
キッチン背面には、鏡張りのような引き戸が印象的で、空間をより広く、より開放的に感じさせてくれます。その奥にはパントリーとカップボードの収納スペースが広がっており、生活感を出さずに機能的な収納が可能。美しさと実用性の両立が見事です。
また、洗面スペースは玄関側に配置されており、2シンク仕様。朝の混雑する時間帯でも、家族で譲り合うことなく快適に使えます。帰宅後すぐに手洗いできる動線も、子育て世代にはありがたいポイントです。


【見えないところにも、こだわりが。】
シューズクロークは広く、ハンガーパイプ付き。出かける前にコートをスマートに取り出せる動線が整っています。
さらに、建物は高気密・高断熱仕様で、5.4mの吹き抜けがあっても、室内の温度環境は快適に保たれます。


【あえて挙げる“弱点”も、住まいを理解する一歩。】
すべてが完璧に思えるこの家にも、いくつかの注意点があります。
主寝室の窓は開閉できないタイプ(羽目殺し)なので、自然換気が難しい部分があります。
LDKのような吹き抜け大空間では、冷暖房効率が下がる可能性も。ただし、高性能な断熱・気密仕様がしっかりとカバーしてくれます。
洗面脱衣所に設けられたおしゃれな棚は、デザイン性が高い反面、実用性には少し工夫が必要かもしれません。


【この家は、「買う」ではなく、「迎え入れる」住まい。】
このモデルハウスは現在販売中ですが、ご購入後3ヶ月間はモデルハウスとしての貸与が条件です。ですが、それだけ多くの人がこの空間に感動し、見に来たくなる理由があるということ。むしろその3ヶ月を、家が輝く時間として一緒に楽しんでほしいと思います。


【あなたに、この空間を体感してほしい。】
この家は、“ただ暮らす”ための家ではありません。
毎日を、美しく、誇らしく生きるための舞台装置のような家。

もしあなたが、住まいに「美」と「心地よさ」の両方を求めるなら。
もし、“作品のような暮らし”を手に入れたいと願うなら――
一度、この空間に立ってみてください。

私がそうだったように、きっと、あなたもこの家に心を奪われるはずです。

続きを読む

見学したい(無料)

Stylish White Room[ペット可]

無料
無料

静岡県湖西市新居町新居896-51

賃料44,000円  
共益費/管理費4,000円

1R /33.12m² /2023年3月

新しいライフスタイルの始まりを、新居町駅からわずか徒歩5分のこのスタイリッシュなワンルームで。

浜名湖のそばに位置するこの物件は、都会的な生活と自然との調和を楽しむことができます。

内部のデザインはそのままハイセンスなライフスタイルの象徴。

キッチンのデザインが圧巻で、シンプルかつ洗練された造りは、お料理の時間も一層楽しみになることでしょう。

水回りの設備も機能性と美しさを兼ね備え、毎日の暮らしを快適にサポート。

外観は真っ白な箱のようなデザインで、シンプルながらも存在感を放ちます。

そして、中廊下はまるでデザイン事務所のような雰囲気で、帰宅する度に特別な気分に浸れます。

一方で、バルコニーがないため室内干しが必須となりますが、その分、プライベートな空間をしっかりと確保することができるのが魅力。

洗面脱衣所がない点も、コンパクトで効率的な生活スタイルを求める方には逆にメリットとなるかもしれません。

都会的でありながらも、浜名湖の近くという独特の立地を持つこの物件。

新たな一人暮らしを始める方、スタイリッシュな空間で日々を過ごしたい方には、ぜひオススメしたい物件です。

続きを読む

見学したい(無料)

思いやりがいっぱい[戸建]

26万円
13万円

静岡県浜松市中央区富塚町1443-1

賃料130,000円

3LDK /81.25m² /2025年8月

スーパーにドラックストアがあって便利なのはもちろん、少し足を伸ばせば緑や湖なども楽しめる自然豊かな富塚町。
そんな富塚の立地に、新築の3LDK戸建てが誕生しました!

お部屋はウッドデッキ付きの2階建て3LDK。
1階のLDKは16帖で、リビングはきれいな長方形のため、インテリアの配置も考えやすそうです。
天井に埋め込まれめた暖色のダウンライトがなんとも上品で素敵。
3口コンロとグリル付きのシステムキッチンは白い天板がピカピカでお料理のモチベがアップします。
対面タイプなので、リビングにいるお子さんの様子を見たり、ウッドデッキの洗濯物のを様子を確認したりしながらキッチンに立つことが可能です。
仕事に家事に忙しいパパさんママさんにとって、家事動線が優れているのはとっても大事なポイントかと思います。

また、広めの脱衣所には室内物干しを掛けられるホスクリーンが付いています。
洗濯機から濡れた衣類を取り出してその場で干せる、なんと主夫/主婦思いな設計なんだと感心してしまいました。
さらに、すぐ隣のお風呂には浴室乾燥が付いているので、お天気の悪い日は機械の力も借りて忙しい毎日を乗り切りましょう!

一日の終わりには広めの浴槽でゆったり足を伸ばして寛げる、リラックスタイムが待っています。
浴槽のすぐ隣には大きめの窓があるのですが、窓の向こうはウッドデッキ。
ウッドデッキ自体、すのこのような木でできた目隠しに四方を囲われているので、
湯船につかりながら夜風を感じたいときには思い切って窓を開ければ半露天気分に浸れそう。

2階には各部屋にクローゼットのついた洋室が3部屋。
窓の位置やお部屋の広さ、クローゼットの容量などを比べて、どのお部屋を誰の部屋にするか、家族会議を楽しんでください。

今回同時に3棟建ったうち、こちらのA棟は一番道路沿いにあります。
唯一のデメリットを上げるとしたら、その道路が坂になっていて若干見通しが悪いこと。
お車でお出かけの際は、慣れるまでは慎重に出入りしましょう。
とはいえ3台の駐車スペースが無料で付いてきて、専有スペースも広めなので大き目のお車でもゆとりがあるのは安心です。

戸建てのいいところは、なんといってもお隣を気にせず家族でのびのび過ごせること。
さあ、衣・食・住どこに重きを置いても満足できそうなお家が家族の帰りを待っています。

続きを読む

見学したい(無料)

陽だまりと木の温かみ[新築]

26万円
13万円

静岡県浜松市中央区富塚町1443-1

賃料130,000円

3LDK /83.25m² /2025年8月

戸建てをお探しのファミリーさん、お待たせしました!
おしゃれさと住み心地を兼ね備えた「キャレブラン」シリーズの新築戸建てが富塚に募集中です。

3棟の戸建てがまとまって同じ敷地内に建築されたお家なのですが、今回ご紹介するのはB棟。
道路から敷地に入っていって、奥まで進むと右手に見えてくるお家です。

このお家、なんと言っても駐車スペースがめちゃ広い。
並列で3台無料って時点で十分嬉しいんですが、駐車場の手前も充分にスペースがあるので、
大きめのお車に乗っていたり、駐車に自信がない方でも安心して停められます。

室内は、ウッドデッキ付き3LDK。
玄関を開けた瞬間から、木の温かみと陽だまりに包まれる、優しい空間が広がります。
このお部屋の基調になっているのは、ライトオークとホワイトの色味。
インテリアはどんなものでも似合うとは思いますが、あまり主張の強くない、ナチュラルでシンプルな家具たちがぴったりマッチしそうです。
お部屋の角に背の高いサンスベリアやモンステラなどのグリーンを置いておくとより空間が活き活きするかも。

LDKは15.9帖ありますが、Z字型になっており、キッチン周りとリビングスペースとで分かれています。
すでにお持ちの家具家電が大きめな方は、内見時どんな配置にするか、現地で採寸しながらご検討いただくのがおすすめ。
Z字型の理由はそう、ウッドデッキです。
洗濯物を干したり、お子さん用のミニプールを出したり、はたまたデッキチェアを置いて日向ぼっこすることもできちゃいます。

脱衣所の扉が2つあり、回遊動線になっていることも、主夫/主婦には嬉しいポイントですね。
物干し用のホスクリーンが脱衣所についており、浴室には浴室乾燥もついているので、室内干し派も安心です。

水回りに関しては、お料理しながら家族の様子が見られる3口コンロ付き対面ステムキッチンに、
足を伸ばしてゆったり浸かれる1616ユニットバス、
家族で混み合っても安心な1・2階両方にあるお手洗いなど、
全てがピカピカで未使用なので綺麗好きなあなたにも自信をもっておすすめできます。

極めつけはインターネット無料、そしてエアコンが2台付き、全部屋照明付きということ。
ここまで揃っていればもうなんの文句もないでしょう!といいたくなるほど充実したお部屋に仕上がっています。

戸建てでのびのび子育てしたいパパさんママさん、設備面など妥協せずに選べるお部屋、ここにありますよ!
これは狙い目物件です。気になったらぜひお早めの内見をおすすめします。

続きを読む

見学したい(無料)

ゆとりある暮らしを実現するLDK[新築]

無料
9.4万円

静岡県浜松市中央区小沢渡町1222-2

賃料94,000円  
共益費/管理費5,000円

2LDK /64.42m² /2024/8

~マイページを活用して便利な検索!~
マイページを登録すると以下の便利機能が使えます!
・気になった物件のハートを押して「お気に入り」に保存
 お気に入り登録された物件の条件が変わったら更新情報がメールで送信されます。
・勤務先からの距離と時間で検索できる「BP(ベストプレイス)検索」
・検索条件を保存して、同じ条件で検索できる「検索条件保存機能」

こちらの物件が気になったら、まずは内見のご予約を!
以下のお問い合わせフォームよりご連絡ください。

続きを読む

見学したい(無料)
RENT 新築

上島戸建 1号室[新築]

15万円
15万円

静岡県浜松市中央区上島3-707-8

賃料150,000円

3LDK /73.90m²

続きを読む

見学したい(無料)

白基調のお部屋でリラックス[新築]

15.8万円
7.9万円

静岡県浜松市中央区上島7-1-17

賃料79,000円  
共益費/管理費5,000円

1SLDK /55.80m² /2024/5

~マイページを活用して便利な検索!~
マイページ登録すれば以下の便利機能が使えます!
・気になった物件のハートを押して「お気に入り」に保存
・お気に入り登録された物件の条件が変わったら更新情報がメールで送信されます。
・勤務先からの距離と時間で検索できるBP検索(ベストプレイス検索)
・検索条件を保存して、同じ条件で検索できる「検索条件保存機能」

この物件が気になったら
まずは内見のご予約を!
以下の問合せフォームよりご連絡ください。

続きを読む

見学したい(無料)

新たな挑戦、新たなオフィスで

30万円
無料

静岡県袋井市高尾791-2

賃料110,000円  
共益費/管理費5,500円

/55.50m² /2023年8月2

袋井市高尾、2023年8月にできたばかりの店舗物件のご紹介です。
袋井駅から徒歩8分の好立地のため、従業員の通勤や来客にも大変便利な立地。

室内はほとんど新築のためとっても綺麗。
広さは55.5㎡と事務所には最適な広さになっています。
出入口が二箇所あるのもありがたいですね。

こちらの101号室にはトイレとキッチンはついていませんが、内容によっては工事のご相談も可能とのこと。

駅チカの事業用物件は希少なので、早い者勝ちです。
駐車場はありませんので、利用する場合は月極を借りる必要があるのでそこはご注意を。

365LIFEでは賃貸仲介とともに、お店のコンセプト作りから内装デザインまで一貫して承っております。
掲載以外の物件もお取り扱いできますので、まずはぜひ事業内容をお聞かせください!
ご相談お待ちしております。

続きを読む

見学したい(無料)

clean & white

6.4万円
6.4万円

静岡県浜松市浜名区中条368-2

賃料64,000円  
共益費/管理費3,000円

1LDK /40.00m² /2022年

浜北区にお住まいのみなさま、浜北区へのお引越しをご検討されているみなさま、お待たせいたしました!
人気の浜北エリアで築浅物件の空室情報です!

浜北って需要があるわりに物件数が少ないので、いい物件は取り合いなんです。
こちらの物件は遠州小松駅まで徒歩9分の「沿線沿い物件」ともあって早くも埋まってしまいそうな予感。

間取りは1LDKと二人暮らしでもちょうどよさそうな広さ。
さらにWICがついているので収納力も抜群です。
キッチンや浴室の壁は白で統一されていてお部屋が明るく見えます。
玄関スペースにも収納があったり、折り畳み式の座り台があったりと、まさに〝痒い所に手が届く”ような利便性が隅々に施されているのがこの物件のいいところ。

いち早く人気エリアの物件を押さえてしまって、あとはゆっくり荷造りをされてみてはいかがでしょうか?

続きを読む

見学したい(無料)

3フロアのガレージハウス[ペット可]

25.2万円
12.6万円

静岡県浜松市中央区富塚町2071-1

賃料126,000円  
共益費/管理費3,000円

2SLDK /98.66m² /2020年2月

洗練されたデザインの、3フロアのガレージハウスです。

ガレージとしての性能、広さだけでなく居住空間も妥協がありません。
15帖のガレージは、おおよそ幅3400×奥行6200×高さ2600と広々。
車はもちろんのこと、バイクを複数台所有されている方にもお使いいただける空間です。
電動シャッター、スロップシンクが付いています。

2階にはLDKおよびバスルーム。
真紅のキッチンは幅2400。3口コンロにグリル、そしてなんと食洗機付き。
背面にはパントリーとして使える収納もあるし、キッチン回り素敵です。

そしてLDKの一部にはなんと床暖房付きなんです。
お洒落なラグをひいて、スマートプロジェクターで映画鑑賞の日々。幸せ。

そして遊び心のある洗面脱衣所の先には一坪風呂が。
QOL高すぎませんか?

3階へ進んでいくと、2部屋の洋室とトイレ。
6.4帖と6.2帖の洋室にはどちらもウォークインクローゼットを完備という充実度。

気になるのはトイレが3階ということ。
外出時には余裕を持った行動がおすすめです。

続きを読む

見学したい(無料)

【売買物件】子供の宿題、大人の仕事。

静岡県浜松市南区東若林町710-50

価格3,130万円

3SLDK /103.24m² /2023年7月

子育てファミリーのための最適な住まい、浜松の魅力的な住宅をご紹介!
お子様の学びと遊び、親のリラックスと仕事、全てを叶える家、それがこちらの物件です。

浜松駅から車で12分。都心へのアクセス良好ながら、閑静な住宅街で安心の子育て環境を実現。

3LDKの快適な空間は、日々の家族の時間を大切にするために設計されました。
3帖のウォークインクローゼットや各洋室のクローゼットで、家族の服や物を整理整頓。
季節の変わり目に活躍する小屋裏収納も完備。
そしてリビングに設けられた「作業用カウンター」は、子供たちの学びの場として、また親のワークスペースとしても活用可能。
同じリビングには隠し収納スペースもあるので、おもちゃや日用品をスマートに収納できます。

システムバスは「お手入れラクラク」で浴室暖房乾燥機付きの一坪サイズ。
システムキッチンには食洗機を完備し、家事をサポート。キッチンから洗面所へ抜ける動線も家事をスマートにこなすためにデザインされています。
また、玄関ポーチに設置された宅配ボックスで、留守中の荷物受取も安心。家全体はオール電化で、安全かつ効率的に生活できます。

安心と快適を追求したこの家には、停電時も家族を守る「災害用電源供給システム」、健康を考慮した「エアーウォッシュフローリング」、高断熱窓と吹付ウレタンの高気密高断熱仕様が採用されています。さらに「省令準耐火構造」により、火災保険の料金もお得に!

外壁は人気のサイディング仕様で、洗練された外観が魅力です。

子供の成長を見守りながら、家族全員が快適に過ごせるこの家。新しい家族の物語を、こちらで始めませんか?

続きを読む

見学したい(無料)

白6・黒3・木1の黄金比

無料
無料

静岡県浜松市中央区高丘西1

賃料120,000円

3LDK /82.50m² /2022年3月

お家のデザインを考える時は、ベースカラー:アソートカラー:アクセントカラーが
6:3:1の割合で配色するのが黄金比と言われています。
このお部屋のリビングはまさにそれにぴったり。

床と壁が白く、ベースカラーの6割は白
扉やキッチンは黒(ダークブラウン)で、アソートカラー3割は黒
そして、階段下の木目のカクカクがアクセントカラーの1割にあたります。

上品で清潔感溢れるこのお部屋、LDKは15.5帖あります。
ソファーを置いたりテレビを見たりする所謂リビングの空間と、キッチン側のスペースが若干分かれております。
外にはZ字型のリビングの角を埋めるように、大きめのウッドデッキがどどーんと。
お洗濯物を干すだけでなく、お子さんのミニプールを出したり、デッキチェアを置いてチルタイムを過ごしたり、夢が広がります。

デザイン性の高さに加え、このお家の魅力は家事動線の良さ。
キッチンのすぐ横に脱衣所に出入りする扉があるので、お料理しつつ洗濯機の様子を確認するのもラクラク。
脱衣所そのものも広いので家事もこなしやすそうです。

2階に上がると3部屋の洋室があります。
うち2部屋が7.3帖、もう1部屋が4.9帖の広さです。
4.9帖のお部屋は、他2部屋より狭い代わりにクローゼットが大容量!
お洋服の多いおしゃれさんにはこのお部屋を使ってもらうのがいいかも。

立地は商業施設の多い高丘西。
自衛隊浜松基地が近いので平日の日中は少し飛行音が気になるかもしれませんが、慣れてしまえばこっちのもの。
お散歩がてら歩ける距離に公園が2つあるのは嬉しいですし、大雨が降っても水害の心配が少ないのは安心です。

また、驚きなのが駐車場のゆとり具合。
並列2台無料なのですが、1区画ずつ縦列駐車が出来そうなくらい縦に長い駐車場なので、車種次第では4台駐車も夢じゃないかも。
お車をたくさん停めたいご家族様、ぜひ現地でウチの車なら何台停められそうか、確認してみてくださいね!

続きを読む

見学したい(無料)

【売買物件】“ただいま”から“おやすみ”まで、気の利いた設計

静岡県浜松市中央区新橋町614

価格3,669万円

3SLDK /104.34m² /2025年6月

白を基調としたシンプルで洗練された外観に、ブラウンロックの砕石を敷き詰めた駐車場。その佇まいはまるで、ヨーロッパの郊外に建つ一軒家のよう。

浜松市中央区新橋町に、景色に映える、でも暮らしにしっくりなじむ家ができました。

■ 庭、とにかく広いです

南側には45帖分の陽当たり良好な庭が広がっています。家庭菜園、BBQ、ドッグラン……夢が広がるゆとりのある敷地。
「庭がある」だけでなく、「庭が“使える”」って、こういうことかも。

■ 太陽光発電 8.7kW × 長期優良住宅 × 耐震等級3

このお家は、太陽光発電(8.7kW)搭載のオール電化住宅。売電もできるから、毎月の光熱費の節約にもつながります。

さらに、国が定める基準をクリアした「長期優良住宅」かつ「耐震等級3」の安心設計。

▷ 長期優良住宅とは?

長く安心して快適に暮らせる性能を持つと認定された住宅。
耐震性・省エネ性・維持管理のしやすさなどが評価され、
住宅ローン減税や税制優遇の対象にもなるメリットがあります。

■ 小上がり&畳下収納がちょうどいい

16帖のLDKには、3帖の小上がり畳スペース付き。来客時のお泊まり・お昼寝・キッズスペースにも大活躍。さらに、畳の下は収納になっていて、使い勝手も◎!

■ パントリー付きのキッチンで、すっきり暮らす

キッチン横には、可動棚付きのパントリーあり。ストック食材やキッチン家電をしっかり収納できるので、見た目も生活も整ったキッチンに。

■ 2階にフリースペース。図書室にしても◎

階段を上がった先は、ちょっとしたフリースペースに。電源はありませんが、本棚を置いて家族の図書コーナーにしたり、お気に入りの椅子を置いて、読書・昼寝・趣味スペースにも。“余白のある暮らし”が、ここから生まれます。

■ ファミリークロークになるWICの使いやすさ

主寝室のウォークインクローゼットは、なんと寝室側・廊下側の両方からアクセス可能!
家族みんなで使えるファミリークローク的な動線設計で、洗濯物の片付けもラクになります。

■ 洗面が脱衣室の「外」にあるという安心感

洗面台は、脱衣所の外。だから、お風呂中でも洗面が使えるし、来客時も気まずくない。
しかも、玄関すぐ横にあるので、「ただいま」の手洗いがスムーズにできるのも◎。

■ 駐車は3台以上OK

敷地はゆったり、普通車が3台余裕で停められます。自転車やバイクスペースを取っても、まだゆとりアリ。

■ 周辺環境も便利です

新津小学校:徒歩9分

新津中学校:徒歩6分

可美公園:徒歩6分

遠鉄ストア新橋店:徒歩11分

ジャンボエンチョー浜松南店:徒歩12分

高塚駅:自転車で10分(徒歩27分)

学校も買い物も自然も、ほどよく全部そろっているエリアです。

■ まとめ

外観デザインに惚れた人も、住み心地に驚くはず。見た目と中身、両方を妥協しない新築一戸建て。

✔ 太陽光8.7kW搭載
✔ 耐震等級3
✔ 長期優良住宅
✔ 庭45帖以上
✔ ファミリークローク
✔ 小上がり畳+収納
✔ 洗面と脱衣が別設計

一度見たら、きっと忘れられない家です。
ぜひ一度、現地でこの空気を体感してみてください。

続きを読む

見学したい(無料)

【売買物件】静かにカッコいい、を極めた家

静岡県浜松市中央区新橋町613-1

価格3,669万円

3SLDK /104.34m² /2025年6月

浜松市中央区新橋町。
住宅街にひときわ目を引く黒を基調とした外観。スタイリッシュなファサードに合わせるように、駐車場部分はコンクリート打設仕上げ。
無機質な質感が、建物全体の高級感と見事に調和しています。

■ 黒の外観 × ダークブラウンの内装

室内はダークブラウンのフローリングで統一され、モダンで落ち着きのある空間に。家具も合わせやすく、シンプルに仕上げても、ヴィンテージやインダストリアルなテイストにもよく似合います。

■ 太陽光発電8.7kW搭載 × オール電化

屋根には8.7kWの太陽光発電システムを搭載。自家消費も売電も可能で、高性能なオール電化住宅との相性も抜群です。

■ 長期優良住宅認定 × BELS評価 × 耐震等級3

この住宅は、国の基準を満たした「長期優良住宅」認定取得済み。さらに、耐震等級3、省エネ性能を示すBELS評価付きで、暮らしの安心と快適さをしっかりと支えてくれます。

■ 家族の暮らしにちょうどいい、細やかな工夫たち

リビングの小上がり畳スペース(3帖)+畳下収納
 └ 寝転びたいとき、来客時、お子さんの遊び場にぴったり

キッチン横には可動棚付きパントリー
 └ 食材ストックも家電置き場も、しっかり確保

2階に上がると“フリースペース”が
 └ 本棚を置いて家族の図書コーナーにしたり、趣味空間にも

ウォークインクローゼットは2WAY動線
 └ 主寝室・廊下の両方からアクセスでき、ファミリーで使える収納に

洗面台は脱衣室の外
 └ 誰かが入浴中でも、洗面・歯磨き・手洗いが可能。
 └ 玄関からもすぐなので、帰宅後の手洗い動線もばっちり。

■ 駐車スペースは3台以上

コンクリート打ちの駐車場は、スッキリ美しい仕上がり。スタイリッシュな外観にしっかりと馴染みながら、機能性・メンテナンス性・見た目の美しさを兼ね備えています。

■ 周辺環境も快適

浜松市立新津小学校:徒歩9分

新津中学校:徒歩6分

可美公園:徒歩6分

遠鉄ストア:徒歩11分

ジャンボエンチョー:徒歩12分

ファミリーマート:徒歩14分

JR高塚駅:自転車約10分/徒歩27分

学校や公園が近く、子育て世帯にも嬉しいロケーションです。

✔ まとめ

黒の外観 × コンクリートの駐車場。ダークトーンの素材でまとめたこの家は、飾らないけれど、しっかりと“品”がある一棟。

✔ 太陽光8.7kW搭載
✔ 長期優良住宅・耐震等級3
✔ 小上がり畳・パントリー・フリースペース
✔ コンクリート駐車場 × スタイリッシュ外観

見た目も、性能も、間取りの工夫も、全部にちゃんと理由がある。
そんな家を探している方に、ぜひ一度ご覧いただきたい物件です。

続きを読む

見学したい(無料)

イギリス風の戸建てで暮らす[新築]

14.5万円
14.5万円

静岡県浜松市中央区楊子町199-4

賃料145,000円  
共益費/管理費5,000円

3LDK /92.74m² /2025年9月

異国情緒あふれるゲートに迎えられ、一歩小路に足を踏み入れると、そこはまるでヨーロッパでした。
イギリスのお家を連想させるような美しい芝生エリアとレンガ色のお家。
2025年築、こだわりの詰まった3LDK戸建て賃貸のご紹介です。

まず玄関を開けると、ゆったりとした収納スペースと共に、姿見付きのシューズクローゼットがお出迎え。
1階のホールまでまっすぐ進むと、つきあたりにはナチュラルカラーの扉たちが4枚現れます。
開けてみると、それぞれコンセプトの異なる洋室が3部屋と、アクセントクロスが可愛らしいお手洗いが待っていました。

3部屋の洋室はそれぞれ、
①アースカラーに癒されるナチュラル系
②ヘリンボーンの床とネイビーのクロスがおしゃれなカントリー調
③ダークグレイの床がかっこいいアーティスティック風
と、それぞれ違ったおしゃれさで、デザイナーさんのこだわりを感じます。

2階に上がると、17帖のLDKと、脱衣所・バスルームがあります。
なんといっても一度見たら忘れられないのが、LDKの天井部分に剥き出しになった梁。
なるほど、この梁のデザインを実現させるために敢えて2階にリビングを配置しているのかと、感動してしまいました。

1-2階を繋ぐ階段は吹き抜けになっていて、そこにはシーリングファン。
3方向に窓がたっぷりのLDKなので、お天気のいい日は窓を開けてファンを回せば、きっとさわやかな風がすーっと吹き抜けることでしょう。

実用性の面でも、キッチンは3口IHコンロ付きのシステム対面キッチン、お風呂は浴室乾燥機付きの一坪風呂なのはもちろん
パントリー収納があったり、汚れが目立ちにくそうなアクセントクロスがチョイスされていたりと、
長く快適に暮らせる工夫が至る所に溢れています。

来客用駐車場もあるので、休日にはぜひお客様を招いて、こだわりの我が家をじっくりと堪能してみて下さい。
こんな素敵なお家に住んだら、愛着が湧いてなかなか次の引越し先を探すのが難しくなってしまうかも...?

お家に帰ってくるたびにワクワクするような戸建て、おしゃれなお家に一度は住んでみたいと憧れていたあなたへ。
ここを逃したらもったいないです、お問い合わせはお早めに!

続きを読む

見学したい(無料)

【売買物件】BBQもドッグランも、この庭なら

静岡県浜松市中央区馬郡町6074-4

価格4,200万円

4LDK /113.14m² /2024年9月

舞阪駅から徒歩3分の場所に、
“家族がゆったり暮らせるステキなおうちのご紹介。

外観はシンプルだけど、おしゃれ。
グレイのコントラストで一目で「これ賃貸じゃないな」って、外からでもわかる存在感です。

■庭、ちゃんと“使える広さ”です

家の裏には、しっかり広い庭があります。
芝生を敷いて、ドッグランにするのも良し、
BBQや家庭菜園、子どもが走り回れるスペースとしても十分。

駅近でこの庭の広さ、実はかなりレアです。

■ リビング横の畳スペース、ちょっと良い

LDKに隣接した3帖の畳スペースは、昼寝、ごろ寝、来客時の寝室、子どもの遊び場にと、使い勝手抜群。クローゼットも付いているので、お泊まりの用意もしやすいです。

■2階ホールは“学び”や“働く”にフィット

階段を上がった先には、ホール(共有スペース)があります。ワークスペースにしたり、子どもの勉強机を置いたり。ちょっとした空間だけど、「あると嬉しい」が詰まっています。

■主寝室はWIC付き

主寝室にはウォークインクローゼット(WIC)を完備。服も季節物もひとまとめにできる収納力で、「片付かないストレス」から解放されます。

■ 太陽光発電 8.3kW & 家具付き

屋根には8.3kWの太陽光パネルが設置済み。売電もできて、毎日の光熱費をぐっと抑えられるエコな家です。

さらに、設置済みの家具はそのままプレゼント。初期費用を抑えたい」という方にも嬉しいポイント。

■ 駐車4台OK、前面道路も広めで安心

敷地内には車4台分の駐車スペースを確保。将来の家族構成が変わっても、車の置き場所に困りません。

■騒音対策も抜かりなし

北側に東海道新幹線の線路がありますが、高性能な断熱材+ペアガラスサッシで、風切り音などの影響は最小限に抑えられています。

■まとめ

「駅チカがいいけど、のびのび暮らしたい」
「ちょっとしたスペースに、ちょっとした自由が欲しい」そんな方にぴったりの一棟です。

舞阪駅徒歩3分、駐車4台、太陽光8.3kW、家具付き。この条件でこのデザイン、なかなか出ません。

ご見学・ご相談はお気軽にどうぞ!

続きを読む

見学したい(無料)

【売買物件】外観に一目惚れして

静岡県浜松市中央区馬郡町6074-5

価格3,980万円

4LDK /115.93m² /2024年8月

舞阪駅から徒歩2分……というより、目と鼻の先。
玄関を出てすぐに駅がある感覚は、通勤・通学がグッと楽になるだけじゃなく、
ちょっとしたお出かけにも便利すぎる立地です。

でも、この家の魅力は「駅近」だけじゃありません。
とにかく 外観がカッコいい。

白いタイルの壁に、レッドシダー調の木目サイディングの軒天。
ちょっと海外っぽい、“西海岸風”のデザインが目を惹きます。
周囲の住宅とは一線を画すおしゃれな存在感があります。

■ 謎に広い1階の“ホール”が可能性を広げる

玄関を入ってすぐ、1階に約12帖の“ホール”のような洋室があります。
リビングともつながっていない、独立したこのスペースが、かなり面白い。

たとえば──

自宅でエステやネイルなどのプチ開業スペースに

士業や教室などの小さな事務所として

趣味にどっぷり浸かるアトリエやトレーニングルームに

大きなソファを置いてシアタールームにも

暮らすだけじゃない、「使える家」って感じがします。

■ 家族の暮らしやすさも、ちゃんとあります

・間取りは4LDK+多目的ルーム
・リビングは明るく、対面キッチンで家族の会話が弾むつくり
・水まわりも最新設備で、使い勝手◎
・収納も各部屋にあり、主寝室にはウォークインクローゼットつき
・駐車場は3台分以上。前面道路も広くて出し入れラクラク

そして、設置済みの家具はプレゼントとのこと!
引っ越してすぐ、おしゃれな生活が始められます。

■ 太陽光発電 8.4kW搭載。暮らしがエコ&スマートに

屋根には8.4kWの太陽光パネルを設置済み。
発電した電気は、自分で使ってもいいし、余った分は売ることも可能。
今どきの家らしく、オール電化仕様&省エネ基準適合。
毎月の電気代も、ちょっと助かるかも。

■まわりの環境も、ちょうどいいバランス

舞阪駅:徒歩2分

春日こども園:徒歩7分

セブンイレブン:徒歩8分

フードマーケットマム:徒歩9分

杏林堂:車で約4分

イオンモール志都呂:車で約10分

浜名湖:車で約10分

買い物・子育て・自然の全部が、ちょうどいい距離にあるのも嬉しいポイント。

■こんな方におすすめ!

駅近で、でもちょっと目立つおしゃれな家に住みたい方

自宅で開業や事務所利用を考えている方

人とちょっと違う暮らしを楽しみたい方

浜名湖の近くで、ゆるやかに生活したい方

■まとめ

「駅近・外観がカッコいい・多目的ルームあり・太陽光付き」
この組み合わせ、なかなかありません。

使い方の自由度が高くて、暮らしの可能性が広がる家。
舞阪エリアで「ちょっと違う家」を探しているなら、一度見てみる価値ありです。

ご内覧予約、随時受付中です!

続きを読む

見学したい(無料)

【売買物件】街並みがキレイって、住んでから大事だと気づく

静岡県浜松市中央区桜台2-107-21

価格4,300万円

3LDK /113.49m² /2024年9月

「ここ、空気がちがうな」って感じる。
桜台の街並みって、そんな雰囲気があります。

整った区画に、緑があって、騒がしすぎず静かすぎず。
車通りも多すぎないし、どこを歩いても“ちゃんと暮らしてる人がいる街”っていう空気が漂ってるんです。

そんな桜台2丁目にできたちょっとこだわりの戸建て、ご紹介します。

■応接室として使える1階洋室が、実は便利!

玄関入ってすぐ、1部屋あります。
昔ながらの“応接室”みたいな使い方ができるから、来客時に生活空間を見せずに済むのが嬉しいポイント。

テレワーク用の書斎や、親御さんが泊まりに来たときの部屋としても◎。
意外と、「あってよかった!」と思える空間です。

■約16帖のLDKは対面キッチン付き

リビングは16帖で対面キッチンタイプ。
広すぎず狭すぎず、家族がちゃんと集まれるサイズ感。
キッチンからお庭が見えるから、料理中もお子さんの様子が見えて安心です。

リビングの掃き出し窓からそのまま庭に出られるので、ウッドデッキを作っておうちカフェなんかもいいかも。

■ 外観も中も、おしゃれにまとまってる

シンプルだけど高級感があり、落ち着いた外観。
デザイナーズらしいアクセントもあって、“桜台の街並みにちゃんと馴染む”デザインになっています。

玄関ポーチには屋根がついていて、雨の日の出入りも安心。
収納もたっぷりで、主寝室には広めのウォークインクローゼットがあり、衣替えもラクラクです。

■2階ホールは“ちょっと嬉しい”スペース

2階に上がると、廊下というより“ホール”という感じのちょっとした広いスペースがあります。
ここにお子さんの勉強机を置いたり、簡易ワークスペースにしたり、使い方は自由。

「このちょっとしたスペースが、暮らしの幅を広げてくれるんだよな」って、住んでみてわかる良さがあります。

■駐車3台OK&前面道路は6mでゆったり

車は最大3台分停められるスペースあり。
来客用や将来のお子さん用としても安心です。

前面道路は6mと広めなので、車の出し入れもラクラク。
運転に自信がない方でもストレスを感じにくいはず。

■ 太陽光パネル7.47kW搭載で、エコな暮らしも

屋根には7.47kWの太陽光発電パネルを搭載。
自宅で使ってもいいし、余った分は売電もOK。
環境にもお財布にもやさしい、ちょっと先を見据えた暮らしができます。

■周辺環境も、静かで便利

徒歩圏内に、スーパー・ドラッグストア・コンビニがそろっていて、毎日の買い物にも困りません。

遠鉄ストア桜台店:徒歩約7分

桜台ショッピングセンター:徒歩約8分

セブンイレブン:徒歩約9分

ココカラファイン:徒歩約8分

Seria:徒歩約8分

浜松市立和地小学校:徒歩約15分

子育てにも、落ち着いた暮らしにも、ちょうどいい環境です。

■まとめ

見た目も、間取りも、街の雰囲気も、
「なんか、いいな」と思える家。

シンプルだけど高級感があり、そのくせ気取っていない感じが好き。住んでからの満足度が高い家って、こういう家なんだと思います。

桜台のキレイな街並みで、新しい暮らしを始めませんか?
お気軽にお問い合わせ・ご見学ください。

続きを読む

見学したい(無料)

光を肌でかんじる[新築]

無料
無料

静岡県浜松市中央区篠原町1162-3

賃料129,000円

3LDK /81.98m² /2025年4月

篠原町の新築戸建ての紹介です。

四角ばったスタイリッシュな外観の建物の中は、ほのかに光を取り入れやすい工夫が施されています。

窓はガッチリ大きいものではなく、控えめでしとやかなサイズの窓が配置されていて、
インテリアの置き方によったら光を楽しめるナチュラルな感じやムーディーな感じにもできそう。

なんたって新築だから、心地よい空間を心置きなく作り出してくださいね。

ちょっと足を運べば高塚駅やビーチにもアクセスできる。
リフレッシュにもぴったりな立地でGOODです◎

続きを読む

見学したい(無料)
RENT

【建築中】新築ガレージハウス

16万円
8万円

静岡県浜松市浜名区貴布祢1787-1

賃料80,000円  
共益費/管理費2,000円

1R /59.62m² /2025年9月

【速報】浜北区貴布祢に、新築ガレージハウスが建築中です!
変わった魔法みたいな名前。
ちなみに調べたら、どうやらギリシャ神話のポセイドンという意味らしいです。
ポセイドンは海の支配者であり、地震の神であり、馬を創った方だそうです。強いですね。

9月に完成予定、10月中旬に入居可能予定となります。
1LDKタイプと1Rタイプが募集中です。
続報があればご報告いたします。

続きを読む

見学したい(無料)

巨大メロンがいる生活[ペット可]

12.5万円
12.5万円

静岡県浜松市中央区上西町1169-1

賃料125,000円  
共益費/管理費5,500円

3LDK /78.72m² /2024年9月

巨大メロンってなんのこと?ってなりますよね。

ここでいう巨大メロンは、あの高級果物ではなく、
建物近くにある都市ガスを貯蓄しているガスホルダーのことです。
そのガスホルダーがどのお部屋にいてもこちらを見守っているんです。
365日、いつでもそこにいるのでまさに巨大メロンがいる生活という訳です。
そしてもちろんこちらの物件は都市ガスです。
都市ガスの魅力はガス代が安くなるに加え、二酸化炭素の排出量が少ないので地球にも優しいんです。

またこちらの物件、小型犬1匹であれば一緒に暮らすことができます。
14.3帖の広々LDKに加え、2枚引き戸を開ければ5.1帖の洋室と繋がります。
二部屋会わせて19.4帖の大部屋に大変身。
わんちゃんと思う存分遊べますよ。

ぜひわんこと、巨大メロンがいる生活を送りましょう。

続きを読む

見学したい(無料)

自分色の新生活を[新築]

無料
17.85万円

静岡県浜松市中央区佐藤1-31-29

賃料119,000円  
共益費/管理費5,000円

2LDK /60.36m² /2024年3月

~マイページを活用して便利な検索!~
マイページを登録すると以下の便利機能が使えます!
・気になった物件のハートを押して「お気に入り」に保存
 お気に入り登録された物件の条件が変わったら更新情報がメールで送信されます。
・勤務先からの距離と時間で検索できる「BP(ベストプレイス)検索」
・検索条件を保存して、同じ条件で検索できる「検索条件保存機能」

こちらの物件が気になったら、まずは内見のご予約を!
以下のお問い合わせフォームよりご連絡ください。

※画像は管理会社様からご提供いただいたものです。

続きを読む

見学したい(無料)

木の温かみとスタイリッシュさ[ペット可]

12.5万円
12.5万円

静岡県浜松市中央区上西町1169-1

賃料125,000円  
共益費/管理費5,500円

3LDK /78.72m² /2024年9月

木目の温かみとスタイリッシュさを併せ持つ3LDK。

木には節や木目があるため、一つ一つが違う味があります。
例えば、LDKの木目調の壁。
人口では作り出せない上品でナチュラルな雰囲気を演出しています。
日当たりもいいので観葉植物を育ててみても素敵ですね。

そしてキッチン。
家族の暮らしの中心になる欠かせない場所です。
その場所に木目の暖かさを取り入れることで落ち着きのある居心地のいい空間になっています。
対面式キッチンなので、家族の笑顔を見ながらお料理したいですね。
ちなみに小型犬1匹も一緒に暮らせますよ。

わんちゃんも大事な家族の一員となって、暖かい幸せな生活を送りましょう。

続きを読む

見学したい(無料)

お財布に嬉しいエコな部屋

無料
7.2万円

静岡県浜松市浜名区小松4543-1

賃料72,000円  
共益費/管理費6,000円

1LDK /41.12m² /2023年12月

浜北小松駅から徒歩2分というアクセス便利な場所にできた、2023年12月完成の物件をご紹介します!

これだけでも十分魅力的なんですが、まだまだ魅力満載なんです!

というのも、こちらの物件は超省エネ+創エネで一次エネルギー収支ゼロを目指すZEH-M物件なんですね。電気代が高騰している今、これはかなり嬉しいですよね。太陽光発電なので電気代の心配もいりませんし、備え付けの照明はLED、高効率エアコンと至れり尽くせりです。

それだけではありません。セキュリティーもALSOK、1階ですがシャッターがあるので防犯面も安心です。
浴室乾燥、室内干しなどあるので外干しに抵抗がある女性や、雨の日でも安心して過ごせます。

LDKも12帖と4.6帖があり、ウォークインクローゼット付きと、設備も充実。

快適な空間から生活を始めてみませんか?

続きを読む

見学したい(無料)

収納たくさんが嬉しい

無料
7.65万円

静岡県浜松市浜名区小松4543-1

賃料76,500円  
共益費/管理費6,000円

1LDK /43.91m² /2023/12

浜北小松駅から徒歩2分というアクセス便利な場所にできた、2023年12月に完成した物件をご紹介します!

これだけでも十分魅力的なんですが、まだまだ魅力満載なんです!

というのも、こちらの物件はめちゃくちゃ収納が充実しているんですね。写真を見ていただいてもわかるように、廊下にもリビングにもキッチンにも、洋室にも洗面所、トイレと、収納だらけ。収納の無い部屋は無いと思います。これだけあれば、きちんと片付いて毎日すっきりですよね!

そしてさらにこのお部屋、とってもお財布に優しいんです。
超省エネ+創エネで一次エネルギー収支ゼロ!を目指すZEH-M物件なんですね~。電気代が高騰している今、これはかなり嬉しいですよね。太陽光発電なので電気代の心配もいりませんし、備え付けの照明はLED、高効率エアコンと至れり尽くせりです。

セキュリティーもALSOK、1階ですがシャッターがあるので防犯面も安心です。
浴室乾燥、室内干しなどあるので外干しに抵抗がある女性や、雨の日でも安心して過ごせます。

LDKも12.2帖と5.2帖があり、ウォークインクローゼット付きと、設備も充実。

素敵なお部屋で新たな生活を始めてみませんか?

続きを読む

見学したい(無料)

夢がもりもり[ガレージ]

無料
9万円

静岡県浜松市中央区北島町261-1

賃料90,000円  
共益費/管理費4,000円

1SLDK /84.14m² /2022年12月

待ち望んでいた方も多いと思います。
そう、築浅のガレージハウスです。

場所は旧東区の北島町。
バイパスへのアクセスもよく、磐田方面に出勤の方にもおすすめです。

広々ガレージは、幅265cm×奥行550cm×高さ240cm。
出入り口は重厚な電動シャッターです。
スロップシンクやEVコンセントも付いています。

ガレージハウスにありがちなのは、居住エリアは何かしらの妥協ポイントがあること。
特に収納は小さいことが多いのですが、このお部屋にはなんと、大きなウォークスルークローゼットが付いているのです。拍手。
たくさん入るだけじゃなく、ウォークスルーってところがさらにいいですよね。

洋室側にはバルコニーとは別にサンルームが用意されています。
雨の日はもちろん、洗濯物を花粉で外に干せない方、中干し派の方にはうれしい。

設備も築浅だからきれいです。そして充実。
3口ガスコンロにグリル付きのシステムキッチンに、浴室には追い焚きと浴室乾燥機、トイレはもちろんウォシュレット。
エアコンはうれしい2台付き、ネットも無料で使えます。宅配ボックスもあります。

ガレージハウスに住みたい、そして快適に暮らしたいというあなたにおすすめです。
現入居者様の退去前ではありますが、これは人気が出そうな予感。

続きを読む

見学したい(無料)

新たな旅が始まる 〜to JUPITER〜[ガレージ]

無料
無料

静岡県掛川市中央1-14-5

賃料145,000円  
共益費/管理費3,000円

2LDK /97.00m² /2026年1月完

JR東海道本線掛川駅北口から西へ徒歩4分。
来年1月に完成予定の新築ガレージハウスの募集が開始しました。

建物の名前は『Ginga Express』。
JRおよび天竜浜名湖鉄道の沿線に位置しているため、3階南側からは新幹線・東海道線・天浜線がさながら実物大のジオラマのように見られるかもしれません。
進む電車たちを眺めながら、前を向いて一歩踏み出すために心を整える夜があってもいいですね。

住所表記はアルファベットまでで問題ありませんが、実は各棟には星の名前が割り当てられています。
A棟は"JUPITER"、木星。
『Ginza Express B to JUPITER』が正式なお部屋の名前です。
内装には"JUPITER"をイメージした、茶色・緑色のカラーが用いられているとか。
なんと建物4戸ともカラーが違うそうです。
完成が楽しみですね。

1階北側玄関およびガレージ周りの外壁はコンクリート打ちっぱなしの外壁材を使用。
ガレージ内も同じテイストのクロスを用いています。
高級感を醸し出す仕上がりになりそうです。

入居は来年2月中旬頃可能となる予定です。
掛川駅近ガレージの3拍子ですから、完成前に条件のみでお申し込みが入るかもしれません。
気になる方は要チェックです。

続きを読む

見学したい(無料)

あなたを想いながら 〜to VENUS〜[ガレージ]

無料
無料

静岡県掛川市中央1-14-5

賃料145,000円  
共益費/管理費3,000円

2LDK /97.00m² /2026年1月完

JR東海道本線掛川駅北口から西へ徒歩4分。
来年1月に完成予定の新築ガレージハウスの募集が開始しました。

建物の名前は『Ginga Express』。
JRおよび天竜浜名湖鉄道の沿線に位置しているため、3階南側からは新幹線・東海道線・天浜線がさながら実物大のジオラマのように見られるかもしれません。
進む電車たちを眺めながら、大切な人たちに思いを馳せる夜があってもいいですね。

住所表記はアルファベットまでで問題ありませんが、実は各棟には星の名前が割り当てられています。
A棟は"VENUS"、金星。
『Ginza Express B to VENUS』が正式なお部屋の名前です。
内装には"VENUS"をイメージした、金色・黄色のカラーが用いられているとか。
なんと建物4戸ともカラーが違うそうです。
完成が楽しみですね。

1階北側玄関およびガレージ周りの外壁はコンクリート打ちっぱなしの外壁材を使用。
ガレージ内も同じテイストのクロスを用いています。
高級感を醸し出す仕上がりになりそうです。

入居は来年2月中旬頃可能となる予定です。
掛川駅近ガレージの3拍子ですから、完成前に条件のみでお申し込みが入るかもしれません。
気になる方は要チェックです。

続きを読む

見学したい(無料)

銀河鉄道に乗って 〜to MARS〜[ガレージ]

無料
無料

静岡県掛川市中央1-14-5

賃料135,000円  
共益費/管理費3,000円

2LDK /95.00m² /2026年1月完

JR東海道本線掛川駅北口から西へ徒歩4分。
来年1月に完成予定の新築ガレージハウスの募集が開始しました。

建物の名前は『Ginga Express』。
JRおよび天竜浜名湖鉄道の沿線に位置しているため、3階南側からは新幹線・東海道線・天浜線がさながら実物大のジオラマのように見られるかもしれません。
進む電車たちを眺めながら、夢や希望を持って生きることについて考える夜があってもいいですね。

住所表記はアルファベットまでで問題ありませんが、実は各棟には星の名前が割り当てられています。
A棟は"MARS"、火星。
『Ginza Express B to MARS 』が正式なお部屋の名前です。
内装には"MARS"をイメージした、赤色・赤茶色のカラーが用いられているとか。
なんと建物4戸ともカラーが違うそうです。
完成が楽しみですね。

1階北側玄関およびガレージ周りの外壁はコンクリート打ちっぱなしの外壁材を使用。
ガレージ内も同じテイストのクロスを用いています。
高級感を醸し出す仕上がりになりそうです。

入居は来年2月中旬頃可能となる予定です。
掛川駅近ガレージの3拍子ですから、完成前に条件のみでお申し込みが入るかもしれません。
気になる方は要チェックです。

続きを読む

見学したい(無料)

銀河鉄道の夜 〜to LUNA〜[ガレージ]

無料
無料

静岡県掛川市中央1-14-5

賃料135,000円  
共益費/管理費3,000円

2LDK /95.00m² /2026年1月完

JR東海道本線掛川駅北口から西へ徒歩4分。
来年1月に完成予定の新築ガレージハウスの募集が開始しました。

建物の名前は『Ginga Express』。
JRおよび天竜浜名湖鉄道の沿線に位置しているため、3階南側からは新幹線・東海道線・天浜線がさながら実物大のジオラマのように見られるかもしれません。
進む電車たちを眺めながら、「本当の幸い」について考える夜があってもいいですね。

住所表記はアルファベットまでで問題ありませんが、実は各棟には星の名前が割り当てられています。
A棟は"LUNA"、月。
『Ginza Express A to Luna 』が正式なお部屋の名前です。
内装には"LUNA"をイメージした、銀色・白色・青色のカラーが用いられているとか。
なんと建物4戸ともカラーが違うそうです。
完成が楽しみですね。

1階北側玄関およびガレージ周りの外壁はコンクリート打ちっぱなしの外壁材を使用。
ガレージ内も同じテイストのクロスを用いています。
高級感を醸し出す仕上がりになりそうです。

入居は来年2月中旬頃可能となる予定です。
掛川駅近ガレージの3拍子ですから、完成前に条件のみでお申し込みが入るかもしれません。
気になる方は要チェックです。

続きを読む

見学したい(無料)

SOCIAL MEDIA